物件価格
月々のお支払い例
1,659.77円
※金利1.20% 借入金額:物件価格、借入期間35年
物件の特徴
主な設備
電気
浄化槽
主な特徴
前道6m以上
2階建
物件概要
| 価格 | 7,000万円 | 間取り | |
|---|---|---|---|
| 物件種別 | 中古一戸建て | ||
| 所在地 | 島根県出雲市斐川町富村 | ||
| アクセス | JR山陰本線『直江』 徒歩14分 (約1100m) |
||
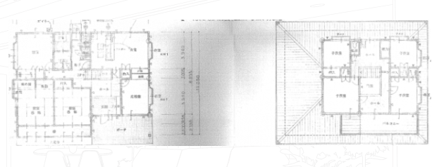
| 建物面積 | 実219.47㎡ | 駐車場 | あり |
| 築年月 | 1990年(平成2年)11月築 | ||
| 建物構造 | 木造 居宅(一部 鉄骨 倉庫) 2階建 | 工法 | |
| 主要採光 | バルコニー | ||
| 保証・評価 | |||
| リフォーム | |||
| 土地面積 | 実2415㎡(730.53坪) | 接道 | 北側(公道)幅 約8.6m 間口 約6.00m |
| 私道 | セットバック | ||
| 地目 | 雑種地 | 地勢 | |
| 権利 | 所有権 |
||
| 都市計画 | 非線引区域 |
用途地域 | 指定無 |
| 建ぺい/容積率 | 60% / 200% | 土地国土法 | |
| 許可番号 | 建築基準法 | ||
| 法令制限 | |||
| 小学区 | 中学区 | ||
| 現況 | 引渡 | 相談 | |
| その他費用 | |||
| 備考 | ※土地 1467番・1396㎡ 、 1468番・1019㎡ ※建物1(1467番) 居宅・木造瓦葺2階建 延べ床面積:219.47㎡(1階・142.98㎡、2階・76.69㎡) ※建物2(1467番の2) 倉庫・鉄骨造平家建 延べ床面積:200㎡ ・敷地内にスタンド有り(調査費用等買主負担) ・下水枡有り ・現状有姿渡し ※別途、所有権移転登記費用、不動産取得税、仲介手数料が必要です。 |
||
| 物件番号 | 4512352 | 取引態様 | 媒介 |










